LOGEMENTS SOCIAUX + SOHO
Paris 18
-
-
-
-
-
-
-
-
-
-
-
-
-
-
-
-
-
-
-
-
-

LOGEMENTS SOCIAUX + SOHO
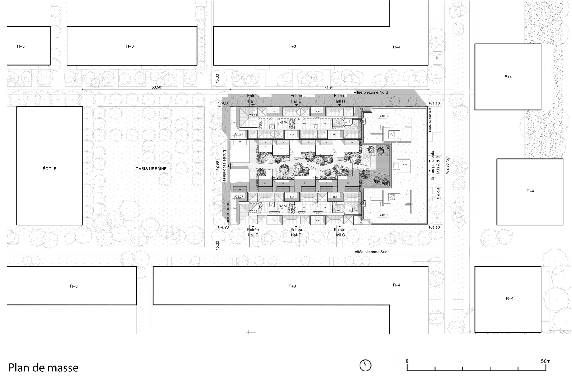
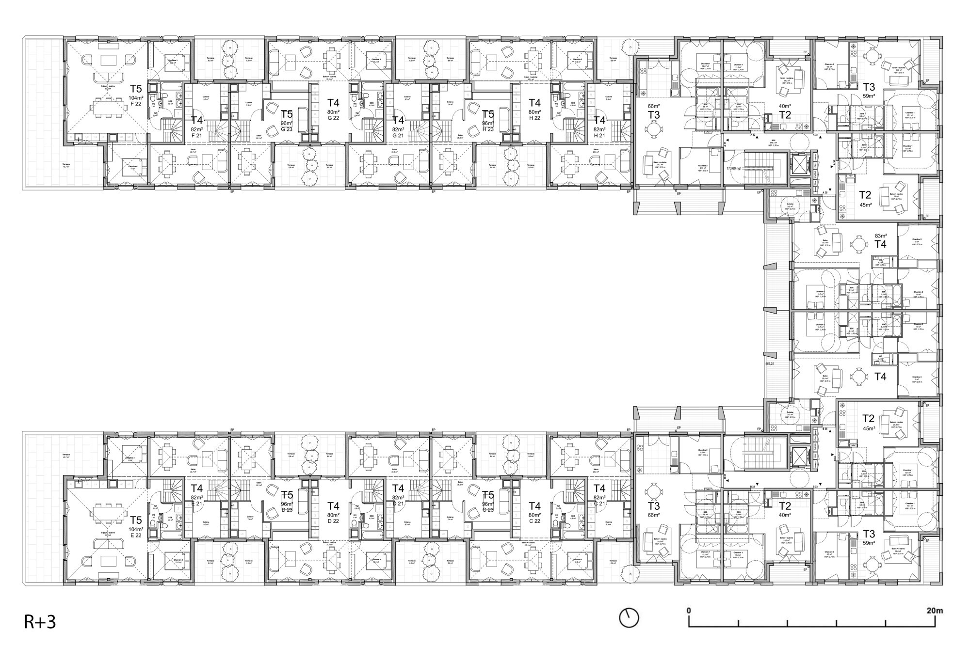
Paris 18Le cahier des prescriptions urbaines de l’AUC définissait de façon assez précise les gabarits enveloppe des trois entités de l’îlot G, en insistant sur la différenciation urbaine et architecturale entre « un monde bas unitaire » et « un monde haut diversifié ». Notre projet s’inscrit dans cette dialectique en ajoutant à l’opposition du socle et des tours celle de deux plots différenciés du point de vue de leur expression tout en partageant des principes architecturaux et constructifs communs, tels que la compacité et la rigueur géométrique, le principe de réversibilité et celui de différentiation et d’identification des logements.
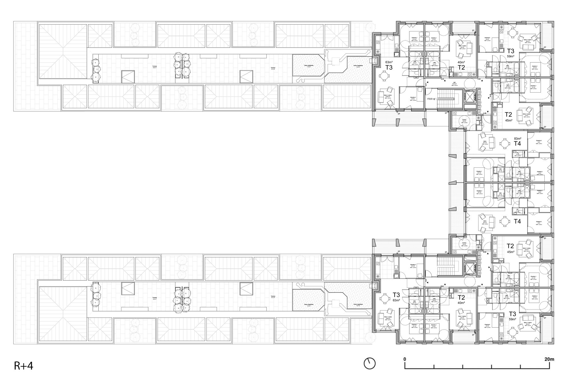
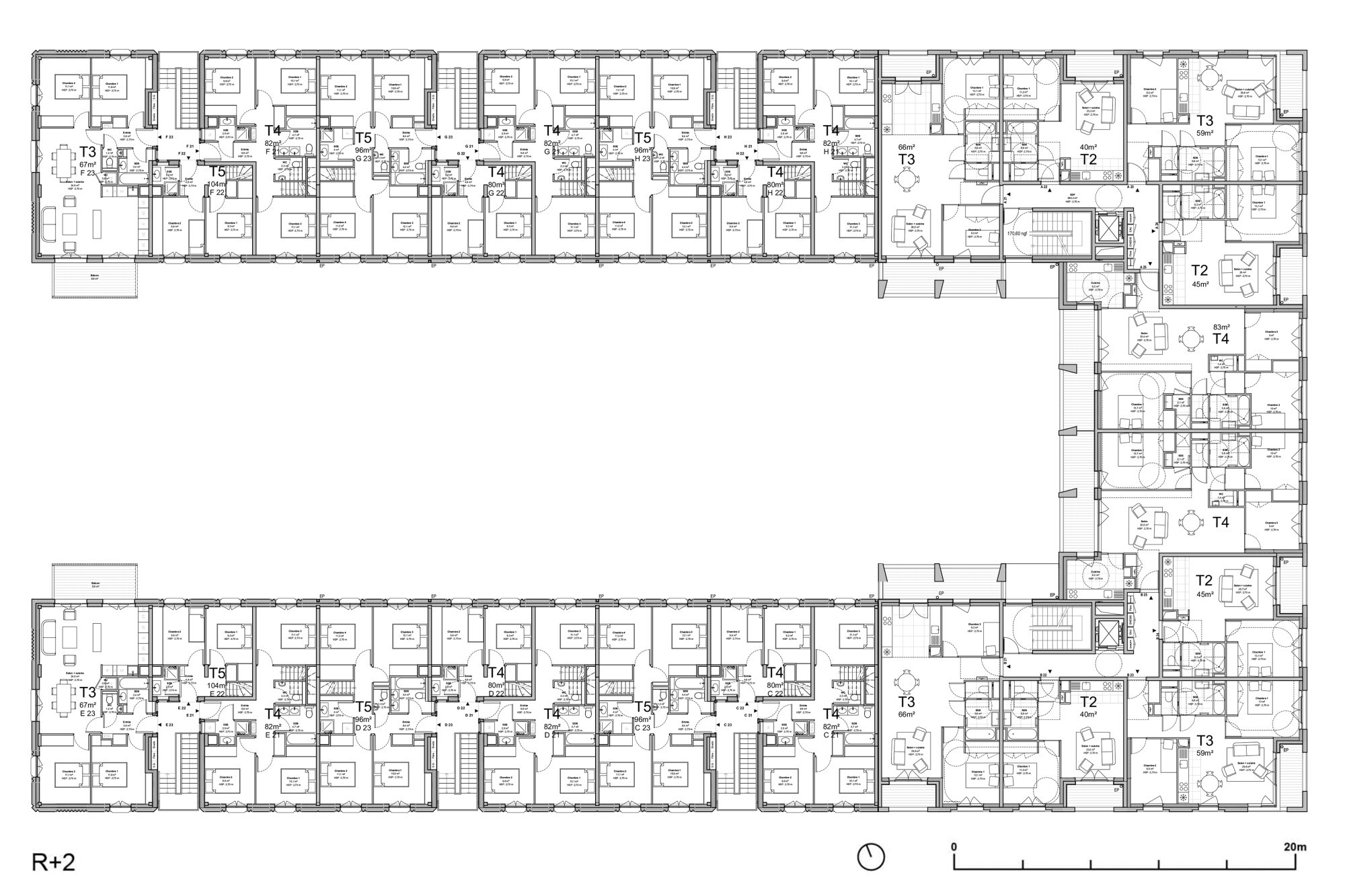
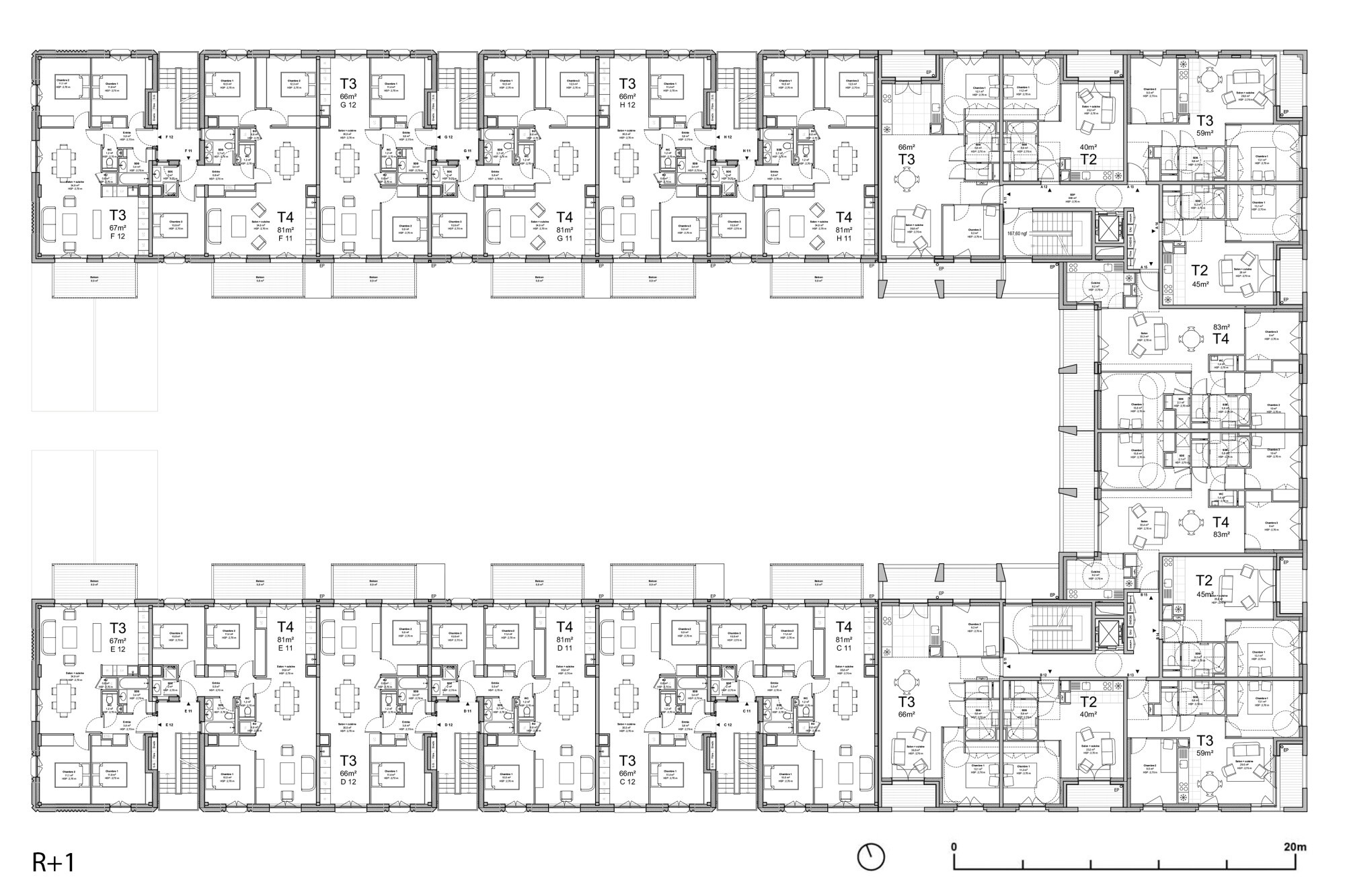
La géométrie quasiment cubique des deux plots de logements (25m de côté) génère des bâtiments compacts et profonds. Si la compacité présente l’avantage de limiter les déperditions et de rationaliser la distribution, elle ne favorise pas l’apport de lumière naturelle ou la flexibilité des espaces. Pour contrer ces inconvénients, nous avons disposé dans une première couronne autour du noyau de distribution les espaces servants des logements (salles d’eau, dégagements) au profit des pièces de vie (séjours, chambres et cuisines) largement ouvertes sur l’extérieur et limité les points porteurs entre le noyau et la périphérie. L’absence de murs de refend autorise la reconfiguration des aménagements intérieurs à venir, les parois séparatives des logements étant réalisées en cloisons de plâtre. L’aménagement intérieur des logements privilégie l’exposition et la taille des séjours. Disposés aux angles des plots et bénéficiant de vues lointaines et dégagées sur le paysage parisien, les séjours sont prolongés par les cuisines et, pour les T2 et les duplex, par des chambres. La continuité spatiale cuisine-séjour-chambre met en valeur la grande dimension du logement et induit une circulation le long des façades largement vitrées.
Le principe des SOHO étant d’associer une habitation à un local professionnel, nous avons proposé une typologie en duplex basée sur la continuité et l’indifférenciation entre bureau et logement tout en prévoyant des entrées séparées. Un accès public depuis les venelles dessert les espaces de travail situés au rez-de-chaussée alors que les habitations bénéficient d’un accès privatif depuis une coursive située à l’étage au centre de l’îlot, les deux étant reliés par des escaliers intérieurs. En permettant une certaine porosité entre des espaces relativement fragmentés, ce dispositif typologique induit un degré d’indétermination entre lieux de travail et d’habitation tout en garantissant un minimum d’intimité entre les différentes unités. Partant du principe que la densité est une qualité du tissu urbain parisien, nous avons travaillé l’épannelage de ce volume construit dans le but d’offrir aux usagers des SOHO des prolongement extérieurs privatifs sur les terrasses et dans des micro patios dont les dimensions (6mx4m) résultent de l’application stricte des règles du PLU. Conçue comme une nappe en aluminium nervuré perforé, la cinquième façade semble tour à tour extrudée pour former des toitures à pans coupés, ou emboutie pour générer des patios et des terrasses revêtues de caillebotis en acier galvanisé. Il en résulte une morphologie inspirée des sheds ferroviaires, avec une imbrication de différentes typologies autour de six patios disposés en quinconce permettant de dispenser un maximum de lumière naturelle et de générer une micro urbanité en cœur d’îlot, une "densité aimable" à l’image du Paris traditionnel. -

LOGEMENTS SOCIAUX + SOHO
Paris 18Programme : 105 logements dont 40 sociaux (G1) et 65 intermédiaires (G2), 18 SOHO (Small Office — Home Office), 2 commerces et 83 places de parking
Maitrise d'œuvre : Moussafir Architectes (Jacques Moussafir, architecte mandataire, avec Jérôme Hervé, Anna Artemeva, Amélie Rigaud et Marty Ilievski) + Nicolas Hugoo Architectures (architecte associé)
Maîtrise d’ouvrage : RIVP
Localisation : Secteur d’aménagement Chapelle International, 75018 Paris
Année : 2014-2022
Surface : 8 947 m² SDP (G1 2 839 m² + G2 4 815 m² + commerces et SOHO 1 293 m²)
Budget : 19,5 M€ HT
Photographe : Hervé Abbadie + Luc Boegly
LOGEMENTS SOCIAUX + SOHO
Paris 18

Programme : 105 logements dont 40 sociaux (G1) et 65 intermédiaires (G2), 18 SOHO (Small Office — Home Office), 2 commerces et 83 places de parking
Maitrise d'œuvre : Moussafir Architectes (Jacques Moussafir, architecte mandataire, avec Jérôme Hervé, Anna Artemeva, Amélie Rigaud et Marty Ilievski) + Nicolas Hugoo Architectures (architecte associé)
Maîtrise d’ouvrage : RIVP
Localisation : Secteur d’aménagement Chapelle International, 75018 Paris
Année : 2014-2022
Surface : 8 947 m² SDP (G1 2 839 m² + G2 4 815 m² + commerces et SOHO 1 293 m²)
Budget : 19,5 M€ HT
Photographe : Hervé Abbadie + Luc Boegly
